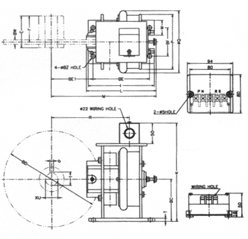
(Test for operational features of Brake )  

 

 
 
¨Ï2003 Korea Machinery Parts All rights reserved. korkomp@hanmail.net